La Diputación de Cáceres continúa con las obras del centro de día y residencia geriátrica de Caminomorisco
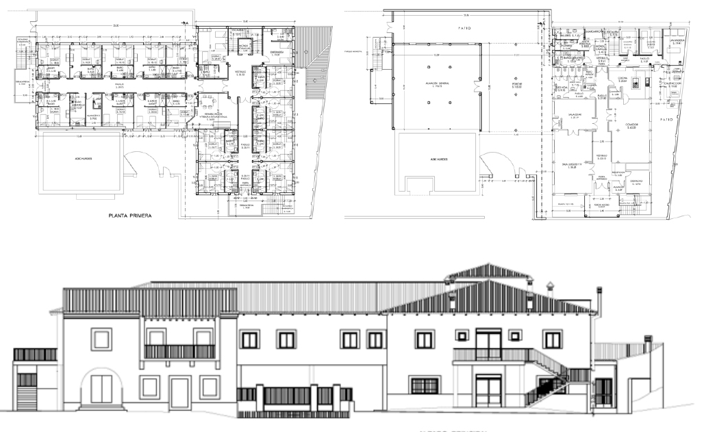
Con un presupuesto en esta segunda fase de 183.680 euros, el proyecto general consiste en un edificio de uso residencial público y hospitalario de 1.688 metros cuadrados
La Diputación de Cáceres, a través de su Área de Infraestructuras, acaba de formalizar el contrato con la empresa EOC24 Arquitectura y Construcción para la construcción de la segunda fase del Centro de Día y Residencia geriátrica mixta en Caminomorisco.
Con un presupuesto en esta segunda fase de 183.680 euros, el proyecto general consiste en un edificio de uso residencial público y hospitalario de 1.688 metros cuadrados: en la planta baja estará ubicado el centro de día y en la primera planta las dependencias propias para residencia geriátrica mixta.
En esta primera planta y formando una 'L' se sitúan las habitaciones a ambos lados del pasillo de distribución central. Dispondrá de siete habitaciones triples y nueve habitaciones dobles, (seis de asistidos y el resto de válidos) todas con baño, además de las dependencias destinadas a enfermería, rehabilitación y terapia ocupacional y almacén.
